Chakran Infra

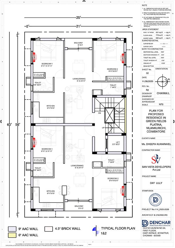
San Day Lilly Floor Plans